Климатические параметры
Помещение
Очаг пожара
Незадымленная зона
Компенсирующая подача воздуха.
Нормируемый диапазон допускаемого дисбаланса от -0,3 до 0.
Расчёт соответствует АВОК 5.5.1-2014 «Расчет параметров систем противодымной защиты жилых и общественных зданий» и соответствует требованиям СП 7.13130.2013.
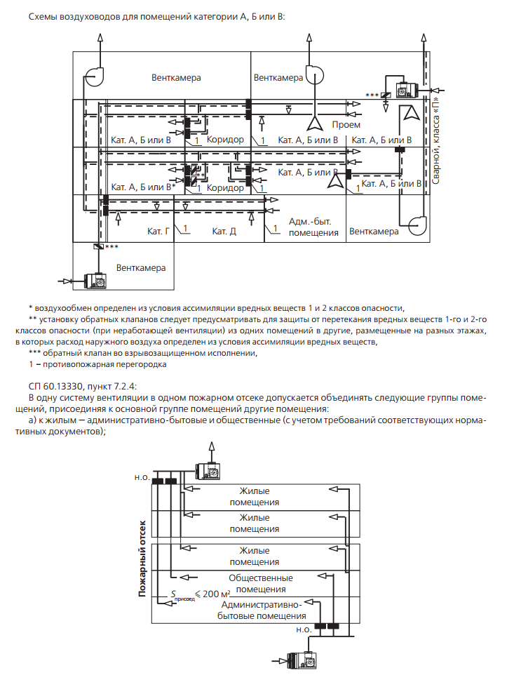
8.8. Для возмещения объемов удаляемых продуктов горения из помещений, защищаемых вытяжной противодымной вентиляцией, должны быть предусмотрены системы приточной противодымной вентиляции с естественным или механическим побуждением.
Для естественного притока воздуха в защищаемые помещения могут быть выполнены проемы в наружных ограждениях или шахты с клапанами, оснащенными автоматически и дистанционно управляемыми приводами. Проемы должны быть в нижней части защищаемых помещений. Притворы клапанов должны быть снабжены средствами предотвращения примерзания в холодное время года. Для компенсирующего притока наружного воздуха в нижнюю часть атриумов или пассажей могут быть использованы дверные проемы наружных эвакуационных выходов. Двери таких выходов должны быть снабжены автоматически и дистанционно управляемыми приводами принудительного открывания. Суммарная площадь проходного сечения открываемых дверей должна определяться согласно требованиям пункта 7.4 (дисбаланс в защищаемом помещении допускается не более 30%. При этом перепад давления на закрытых дверях эвакуационных выходов не должен превышать 150 Па.) и по условию непревышения скорости воздушного потока в дверных проемах более 6 м/с.
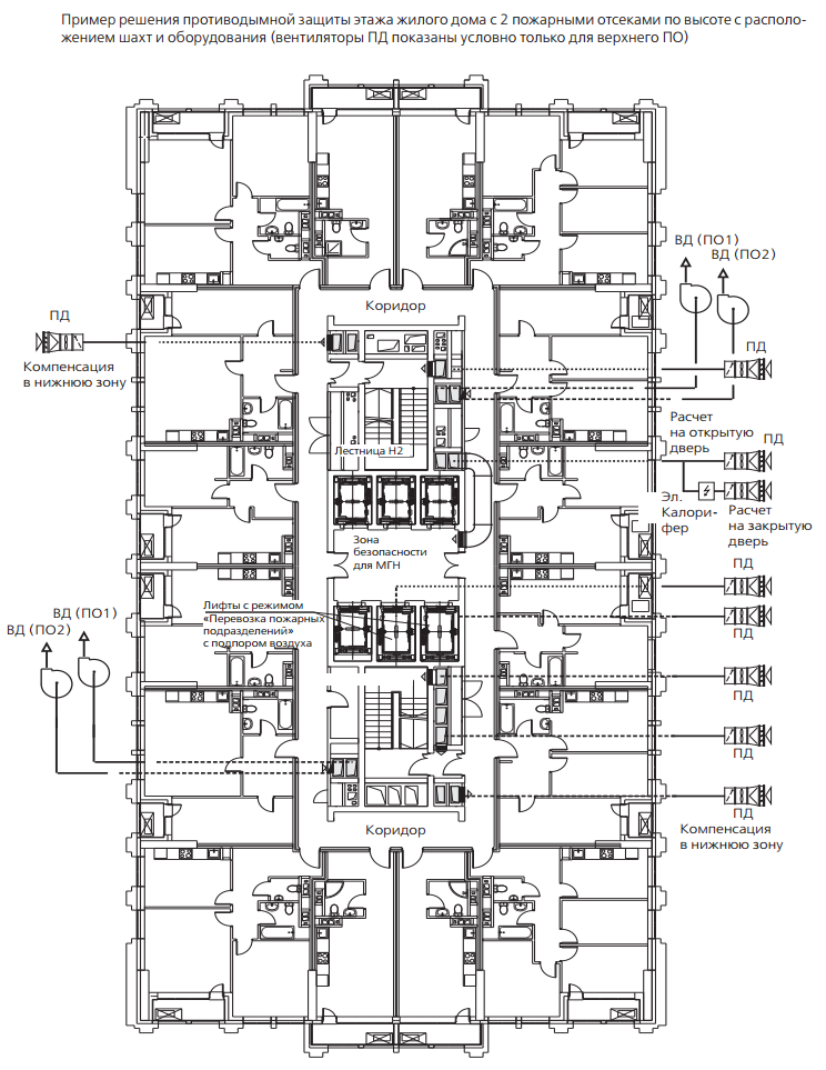
Компенсирующая подача наружного воздуха приточной противодымной вентиляцией с механическим побуждением может быть предусмотрена автономными системами или с использованием систем подачи воздуха в тамбур-шлюзы или лифтовые шахты. При этом в ограждениях тамбур-шлюзов или лифтовых шахт, к которым непосредственно примыкают защищаемые помещения, должны предусматриваться специально выполненные проемы с установленными в них противопожарными нормально-закрытыми клапанами и регулируемыми жалюзийными решетками. Двери тамбур-шлюзов должны быть сблокированы с приводами клапанов в цикле противохода. Допускается применение клапанов избыточного давления в противопожарном исполнении с требуемыми пределами огнестойкости. Компенсирующий переток воздуха из шахт лифтов допускается только для лифтовых установок с режимом управления "пожарная опасность". Шахты лифтов с режимом "перевозка пожарных подразделений" и незадымляемые лестничные клетки типа Н2 использовать для подобного устройства не допускается.
Климатические параметры
Помещение
Очаг пожара
Проемы
Фасады нумеруют в соответствии с их последовательным обходом (соседние номера соответствуют смежным фасадам).
| Номер фасада | Участок N | Суммарная площадь проемов, работающих параллельно F (м2) |
|---|
Компенсирующая подача воздуха.
Нормируемый диапазон допускаемого дисбаланса от -0,3 до 0.
Расчёт соответствует АВОК 5.5.1-2014 «Расчет параметров систем противодымной защиты жилых и общественных зданий» и соответствует требованиям СП 7.13130.2013.
8.8. Для возмещения объемов удаляемых продуктов горения из помещений, защищаемых вытяжной противодымной вентиляцией, должны быть предусмотрены системы приточной противодымной вентиляции с естественным или механическим побуждением.
Для естественного притока воздуха в защищаемые помещения могут быть выполнены проемы в наружных ограждениях или шахты с клапанами, оснащенными автоматически и дистанционно управляемыми приводами. Проемы должны быть в нижней части защищаемых помещений. Притворы клапанов должны быть снабжены средствами предотвращения примерзания в холодное время года. Для компенсирующего притока наружного воздуха в нижнюю часть атриумов или пассажей могут быть использованы дверные проемы наружных эвакуационных выходов. Двери таких выходов должны быть снабжены автоматически и дистанционно управляемыми приводами принудительного открывания. Суммарная площадь проходного сечения открываемых дверей должна определяться согласно требованиям пункта 7.4 (дисбаланс в защищаемом помещении допускается не более 30%. При этом перепад давления на закрытых дверях эвакуационных выходов не должен превышать 150 Па.) и по условию непревышения скорости воздушного потока в дверных проемах более 6 м/с.
Компенсирующая подача наружного воздуха приточной противодымной вентиляцией с механическим побуждением может быть предусмотрена автономными системами или с использованием систем подачи воздуха в тамбур-шлюзы или лифтовые шахты. При этом в ограждениях тамбур-шлюзов или лифтовых шахт, к которым непосредственно примыкают защищаемые помещения, должны предусматриваться специально выполненные проемы с установленными в них противопожарными нормально-закрытыми клапанами и регулируемыми жалюзийными решетками. Двери тамбур-шлюзов должны быть сблокированы с приводами клапанов в цикле противохода. Допускается применение клапанов избыточного давления в противопожарном исполнении с требуемыми пределами огнестойкости. Компенсирующий переток воздуха из шахт лифтов допускается только для лифтовых установок с режимом управления "пожарная опасность". Шахты лифтов с режимом "перевозка пожарных подразделений" и незадымляемые лестничные клетки типа Н2 использовать для подобного устройства не допускается.
Тип расчёта
Климатические параметры
Здание
Коридор
Очаг пожара
Система дымоудаления
Компенсирующая подача воздуха.
Нормируемый диапазон допускаемого дисбаланса от -0,3 до 0.
Расчёт соответствует АВОК 5.5.1-2014 «Расчет параметров систем противодымной защиты жилых и общественных зданий» и соответствует требованиям СП 7.13130.2013.
8.8. Для возмещения объемов удаляемых продуктов горения из помещений, защищаемых вытяжной противодымной вентиляцией, должны быть предусмотрены системы приточной противодымной вентиляции с естественным или механическим побуждением.
Для естественного притока воздуха в защищаемые помещения могут быть выполнены проемы в наружных ограждениях или шахты с клапанами, оснащенными автоматически и дистанционно управляемыми приводами. Проемы должны быть в нижней части защищаемых помещений. Притворы клапанов должны быть снабжены средствами предотвращения примерзания в холодное время года. Для компенсирующего притока наружного воздуха в нижнюю часть атриумов или пассажей могут быть использованы дверные проемы наружных эвакуационных выходов. Двери таких выходов должны быть снабжены автоматически и дистанционно управляемыми приводами принудительного открывания. Суммарная площадь проходного сечения открываемых дверей должна определяться согласно требованиям пункта 7.4 (дисбаланс в защищаемом помещении допускается не более 30%. При этом перепад давления на закрытых дверях эвакуационных выходов не должен превышать 150 Па.) и по условию непревышения скорости воздушного потока в дверных проемах более 6 м/с.
Компенсирующая подача наружного воздуха приточной противодымной вентиляцией с механическим побуждением может быть предусмотрена автономными системами или с использованием систем подачи воздуха в тамбур-шлюзы или лифтовые шахты. При этом в ограждениях тамбур-шлюзов или лифтовых шахт, к которым непосредственно примыкают защищаемые помещения, должны предусматриваться специально выполненные проемы с установленными в них противопожарными нормально-закрытыми клапанами и регулируемыми жалюзийными решетками. Двери тамбур-шлюзов должны быть сблокированы с приводами клапанов в цикле противохода. Допускается применение клапанов избыточного давления в противопожарном исполнении с требуемыми пределами огнестойкости. Компенсирующий переток воздуха из шахт лифтов допускается только для лифтовых установок с режимом управления "пожарная опасность". Шахты лифтов с режимом "перевозка пожарных подразделений" и незадымляемые лестничные клетки типа Н2 использовать для подобного устройства не допускается.
Данные
Климатические параметры
Здание
Лестничная клетка
Система подпора воздуха
Климатические параметры
Здание
Шахта лифта
Клапан
Система подпора воздуха
Вариант расчета
Климатические параметры
Здание
Тамбур-шлюз
Где aкл - Больший из установочных размеров клапана, м;
bкл - Меньший из установочных размеров клапана, м;
Система подпора воздуха
Канал подпора воздуха
Климатические параметры
Очаг пожара
Система дымоудаления
Дополнительная информация
Надо учесть, то, что если зона безопасности предназначена для маломобильных групп населения, то удельная характеристика сопротивления газопроницанию закрытых дверей тамбур-шлюза (м3/кг) должна быть не менее 180000. Второй момент это то, что температура воздуха подпора должна быть не менее 5 градусов и при больших отрицательных температурах наружного воздуха необходимо учитывать подогрев воздуха подпора.
Климатические параметры
Зона безопасности
Система подпора воздуха
Климатические параметры
Здание
Клапан
Канал
Климатические параметры
Параметры помещения
Пожарная нагрузка
Помещение
Климатические параметры
Параметры пожара
Система дымоудаления
Только если пожар под навесом или галереей
Удаление продуктов горения из смежных с горящим помещений
Климатическая нагрузка
Параметры коридора
Пожарная нагрузка
| Теплота сгорания вещества или материала в составе пожарной нагрузки МДж/кг |
Относительная массовая доля вещества или материала в составе пожарной нагрузки от 0 до 1 |
|---|
Помещение пожара
| Площадь проёма | Высота проёма, м |
|---|
Сеть
- L - суммарная длина горизонтально ориентированных элементов вытяжного канала на данном участке, м
- H - суммарная длина вертикально ориентированных элементов вытяжного канала на данном участке, м
- Fd - площадь проходного сечения вытяжного канала на данном участке, м
- Fdp - площадь проходного сечения закрытого клапана данного участка вытяжного канала, м
- Sdpsm - характеристика удельного сопротивления дымогазопроницанию закрытого клапана данного участка вытяжного канала при температуре, м3/кг
- ζ - суммарный КМС участка
- Ta - температура наружного воздуха
| L | H | Fd | Fdp | Sdpsm | ζ | Ta | Повторить этаж сколько раз |
|---|
Параметры сети
Данные
Выбор вида лестницы
Климатические параметры
Здание
Климатические данные
Лифтовая шахта и лифтовой узел
Сеть
Климатические характеристики
Здание
Параметры тамбур-шлюза
Сеть
Посчитать
Расчёт температуры горения
Климатические параметры
Помещение
Очаг пожара
| Вес, кг | Горючий материал |
|---|
Незадымленная зона
Расчёт температуры горения продуктов удаляемых из коридора
Под пожарами, регулируемыми пожарной нагрузкой, понимают пожары, которые протекают при избытке кислорода воздуха в помещении и развитие пожара зависит от пожарной нагрузки. Эти пожары по своим параметрам приближаются к пожарам на открытом пространстве.
| Относительная массовая доля, (от 0 до 1) |
Материал или вещество | Тепота сгорания |














